Großzügig – Zentral - Ruhig
22846, Norderstedt
2008 Baujahr
ca. 164 m² Wohnfläche
ca. 625 m² Grundstück
4 Zimmer
Verkauft
Beschreibung
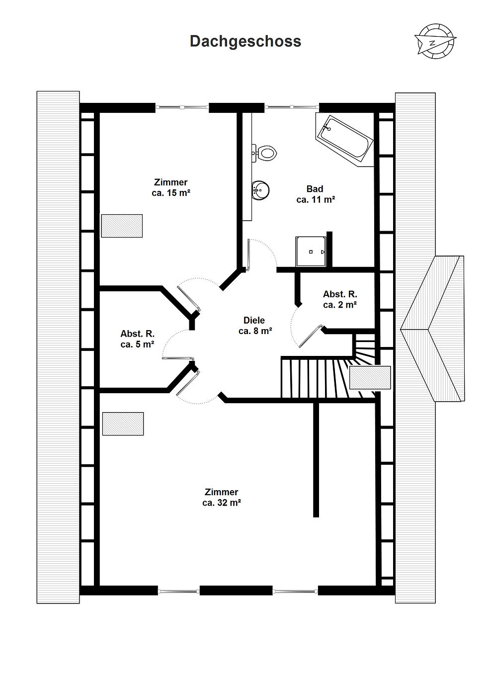
Dieses neuwertige Einfamilienhaus wurde 2008 in massiver Bauweise auf einem ca. 625 m² großen Grundstück errichtet. Die Wohnfläche beträgt ca. 164 m², welche sich auf 4 Zimmer und über zwei Ebenen verteilt. Im Erdgeschoss befindet sich neben dem Eingangsbereich, eine moderne und offene Einbauküche. Diese punktet mit einem zeitlosen Stil sowie hochwertigen Elektrogeräten. Ergänzt wird sie durch eine Speisekammer, welche zusätzlichen Raum schafft. Es folgt der großzügige Wohn-Essbereich. Dieser bietet mit über 32 m² Platz für die ganze Familie und sorgt mit bodentiefen Terrassentüren für eine helle und sonnige Atmosphäre. Die Terrassentüren sind mit einem zusätzlichen Einbruchsschutz ausgestattet und verfügen über elektrische Außenjalousien. Über die Terrassentüren gelangt man zur sonnigen Südterrasse, welche mit einer elektrischen Markise versehen ist. Angrenzend befindet sich ein Zimmer, welches als Kinder-, Arbeits- oder Gästezimmer genutzt werden kann. Es folgen das Gäste-Duschbad sowie der Hauswirtschaftsraum. Zum Dachgeschoss führt eine offene und moderne Holztreppe. Hier befinden sich zwei weitere, sehr großzügige Zimmer. Eines davon mit über 30 m² könnte nochmals geteilt werden, wodurch sich 4 Schlafzimmer ergeben. Aktuell bietet es eine Ankleidenische. Mehrere Velux Fenster sorgen für Helligkeit und den nötigen Komfort. Zusätzlichen Stauraum bieten zwei Abstellräume. Ein großräumiges Badezimmer mit Dusche und Badewanne rundet das Dachgeschoss ab. Eine ausziehbare Treppe führt zum isolierten Dachboden. Das Haus verfügt über mehrere Stellplätze. Es bietet einen Carport mit Schuppen im Norden, sowie eine Garage (elektrisches Tor) mit angrenzendem Carport im Westen.
Ausstattung
- Außenwände und Bodenplatte haben zusätzliche 20 cm dicke Isolierung - Bäder haben eine Fußbodenerwärmung - Vorbereitung für PV-Anlage ist vorhanden - Fenster haben eine 3-fach Verglasung - Möglichkeit 4 Schlafzimmer zu schaffen - Bodenbelag: Fließen, Parkett, Laminat - Haus durch Alarmanlage gesichert - Fenster haben zusätzlich abschließbare Verriegelung - Terrasse verfügt über eine elektrische Markise
Lage
Die angebotene Immobilie präsentiert sich in einer idyllischen und ruhigen Sackgasse im schönen Stadtteil Norderstedt. Unmittelbar an der Grenze zu Hamburg gelegen, gehört Norderstedt zum Kreis Segeberg und ist eine Stadt im Süden von Schleswig-Holstein. Die begehrte Lage der Immobilie ist einzigartig. Aufgrund der Sackgasse herrscht kaum Verkehr vor dem Haus, sodass es ausgesprochen ruhig gelegen ist. Dennoch liegt es sehr zentral. Das Rathaus in Norderstedt sowie die U-Bahn Station „Norderstedt Mitte“ sind lediglich 6 Gehminuten entfernt. Die nächste Bushaltestelle, an der alle relevanten Busse Norderstedts verkehren, ist in 5 Gehminuten erreicht. Darüber hinaus besticht das beliebte Umfeld durch nahegelegene Einkaufsmöglichkeiten, Gaststätten sowie Kindergärten, Grundschulen und weiterführende Schulen. Neben der tollen Infrastruktur bietet die Natur mit dem Norderstedter Stadtpark eine schöne Möglichkeit sich eine Auszeit vom Alltag zu nehmen. Ob eine Radtour, ein Spaziergang oder eine frische Abkühlung im Sommer. Innerhalb von 5 Autominuten ist der Norderstedter Stadtpark erreichbar. Bis Hamburg sind es lediglich 8 und bis zum Hamburger Flughafen 17 Autominuten.
Grundrisse



Informationen zur Immobilie
Typ
Einfamilienhaus
Wohnfläche/Nutzfläche
ca. 164m² / ca. 33 m²
Grundstück
ca. 625 m²
Baujahr
2008
Zimmer
4
Badezimmer
2
Bezugsfrei ab
Sofort
Energieträger
Gas
Energieausweis
Liegt vor
Energieausweistyp
Energieverbrauchs-
ausweis
Energieeffizienzklasse
A
Endenergieverbrauch
45,48 kWh/(m²*a)
Kaufpreis
Verkauft
Provision
Käuferprovision beträgt 3,57 % (inkl. MwSt.) des beurkundeten Kaufpreises
KONTAKT
Ich freue mich auf Ihren Anruf!















